- proyectos
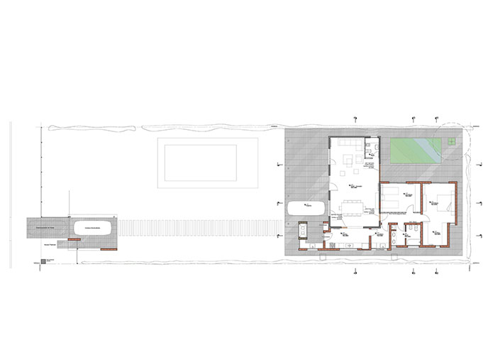
CASA RG
General Pico, La Pampa, 2017
diseñadores:
Arquitecto Ayelén Pilcic
Arquitecto Ramiro Zamora
General Pico, La Pampa, 2017
diseñadores:
Arquitecto Ayelén Pilcic
Arquitecto Ramiro Zamora